福岡県内の事業者で大型リフォーム工事実績 No.1

お電話でのお問い合わせ

tel.092-980-1100

福岡県内の事業者で大型リフォーム工事実績 No.1

たくさんの本との暮らしを楽しむ家

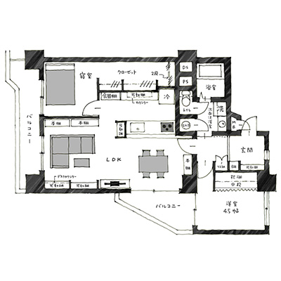
DATA

所在地
福岡市南区
物件価格
1,200万円
リノベ費用
750万円
管理費+修繕積立金
20,000円
築年月
1980年7月
広さ
70.87㎡
間取り
2LDK
西鉄高宮駅から徒歩5分ほどの好立地にあるマンションで、しかも駐車場が無料。広さは70平米で、内装はフルオーダー仕様。総額2,000万円という予算でも、このようにこだわりが詰まった素敵なマイホームを持つことは不可能ではありません。

確かに築古ではあるものの、立地が優れているのとマンション自体の管理がしっかりしていたので、将来的には高い家賃で貸し出すことも可能です。「たくさんの本を収納したい」という夢を叶えつつ、将来の「無駄のない生活」も両立させたマイホームが完成しました。
BEFORE
AFTER

リノベ後のお宅紹介 アクセスランキング TOP4