福岡県内の事業者で大型リフォーム工事実績 No.1

お電話でのお問い合わせ

tel.092-980-1100

福岡県内の事業者で大型リフォーム工事実績 No.1

断熱+床暖房で実現した省エネ団地リノベ

DATA

所在地
福岡市早良区
物件価格
非公開
リノベ費用
1,490万円
管理費+修繕積立金
18,500円
築年月
1976年11月
広さ
67㎡
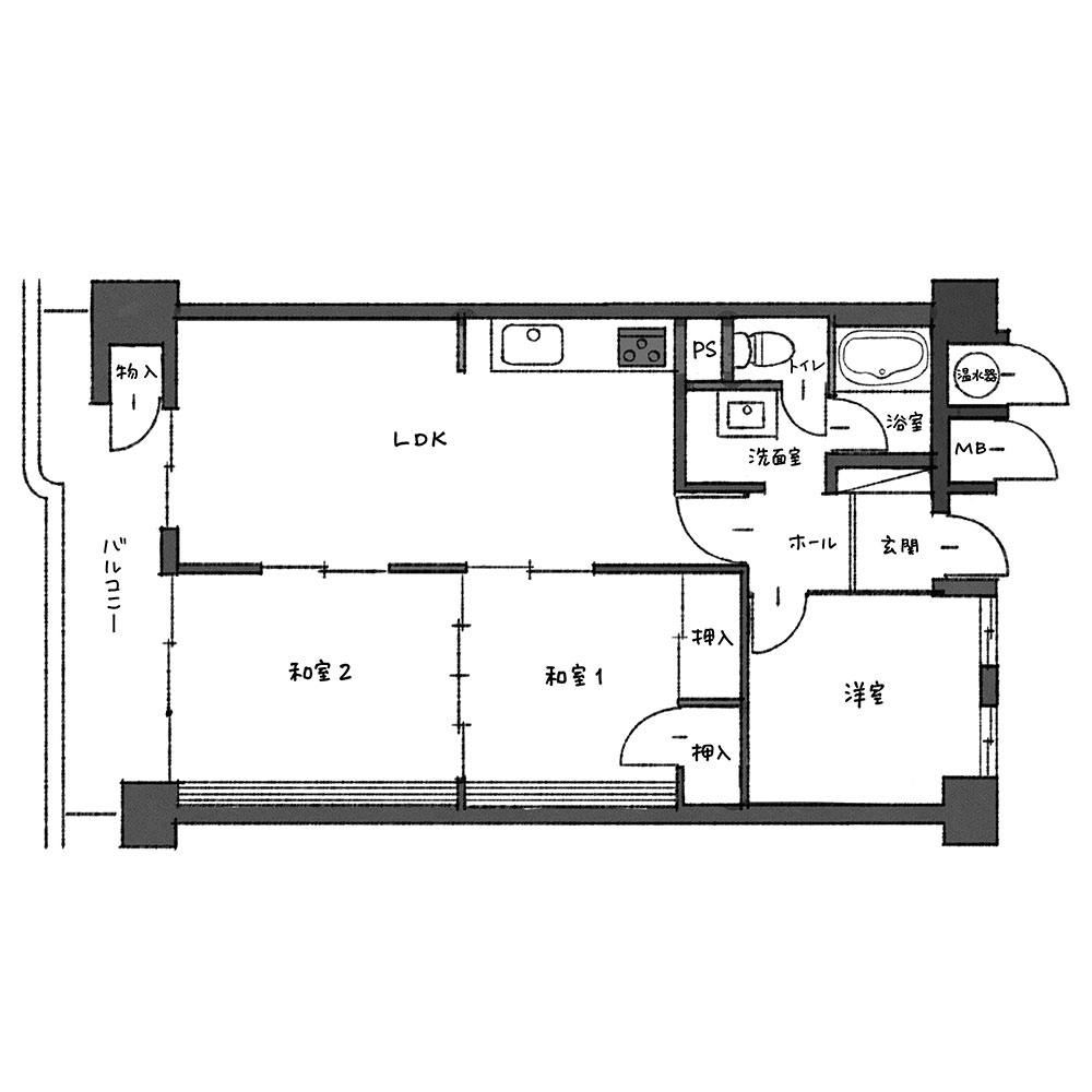
間取り
3LDK+WIC
築年数を経た団地だったため、家族が過ごす空間の断熱にこだわりました。さらに、リビングには床暖房も設置し、冬でもエアコンをほぼ使うことなく快適に過ごせる空間を実現しています。

奥さま一番のお気に入りは、L型のキッチンです。複数人でも十分な作業スペースがあるため、最近は子どもたちが料理の手伝いをするようになったとのこと。設計の初期には天井高の収納を設置予定でしたが、途中で腰壁に変更。収納力自体は減ったものの、料理をしながら家族の顔が見えるようになりました。

改装前、現在の子ども部屋(洋室)にはエアコンが設置ができない構造でした。そこで、既存窓の内側に、新たに壁と内窓を造作することで、エアコンが設置できるよう工夫しています。築古団地ではよくある問題ながらも、これまでの経験を元にQOLをアップしました。

マイホーム探し中の方にとって、団地の「手頃な価格」はなによりの魅力です。築古であっても、団地は建物同士の間隔が広いため日当たりも良好ですし、敷地内には子育てに適した公園もあります。しかも、今回のお宅は団地ながらも、エレベーターが設置された珍しいタイプの物件でした。

地下鉄空港線沿いの人気駅まで徒歩圏内という贅沢なロケーションながら、ムリのない予算内で「冬でも家族みんなが気持ちよく過ごせる家」が完成しました。
BEFORE
AFTER

リノベ後のお宅紹介 アクセスランキング TOP4