福岡県内の事業者で大型リフォーム工事実績 No.1

お電話でのお問い合わせ

tel.092-980-1100

福岡県内の事業者で大型リフォーム工事実績 No.1

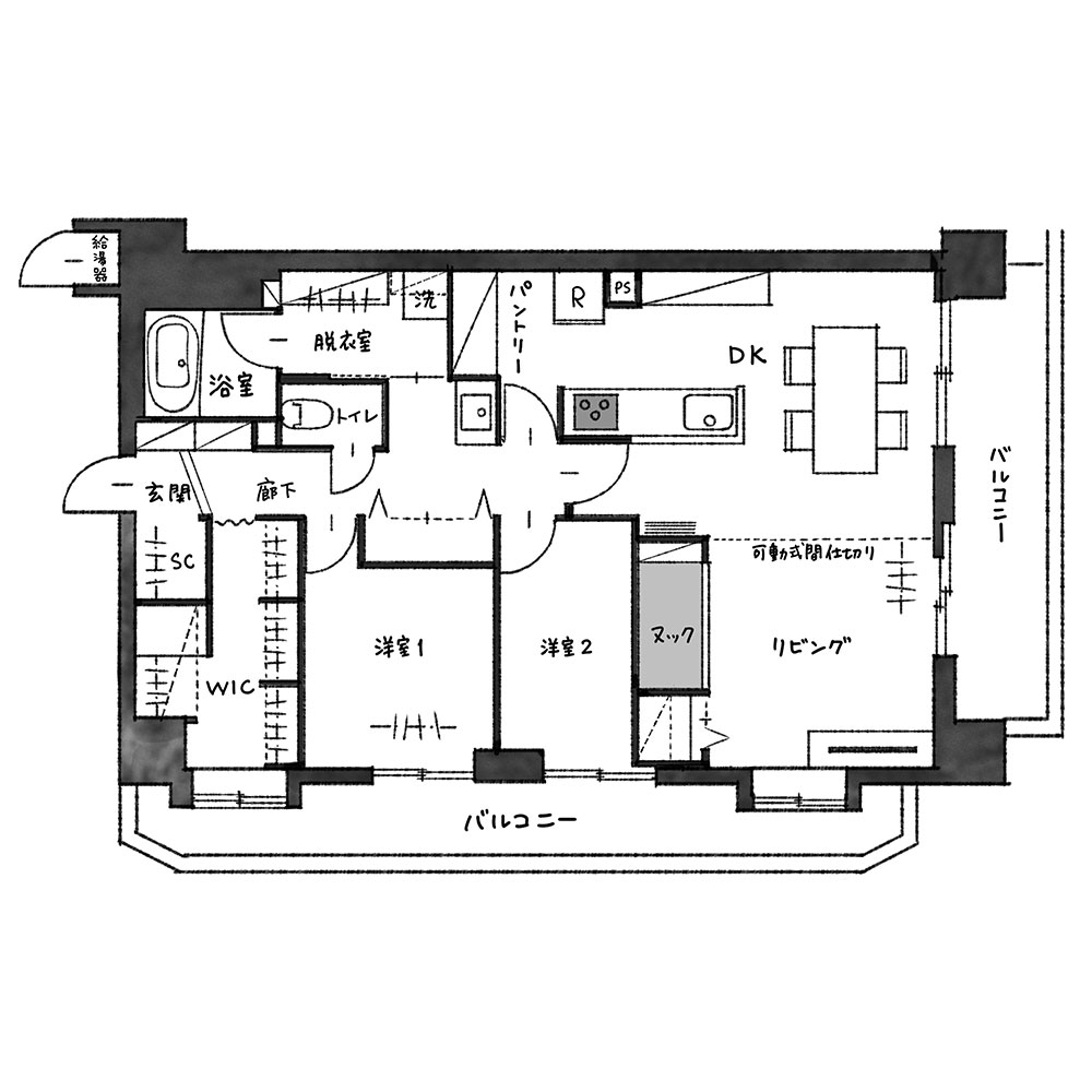
「動く壁」で広さも過ごし方も自由なマイホーム

DATA

所在地
福岡市東区
物件価格
非公開
リノベ費用
1,480万円
管理費+修繕積立金
29,350円
築年月
1997年12月
広さ
80.23㎡
間取り
2LDK +WIC(最大 3LDK+WIC)
お子さまが生まれるタイミングで、広いお部屋を探し始めたというご夫婦。当初は賃貸や新築マンションを検討されていたとのことですが、調べているうちに自由な内装に興味を持たれたそうです。最終的には立地と予算を踏まえ、中古+リノベを選ばれました。

本宅の一番の特徴は、リビングとダイニングの間に「動く壁(可動式の間仕切り)」を設置したことです。普段は全開にして広々LDKでの生活を楽しみつつ、来客の時や必要な個室が増えた際にはお部屋を分割する予定です。

リビングに作ったヌックが、一番のお気に入りスペースというご夫婦。ほどよく「囲まれた空間」はちょうど大人の背丈ほどのサイズなので、テレビを見ながら寝転がることもできます。

将来も見越したリノベならではの自由設計で、新築では叶えることができなかった「自分たちらしい、居心地の良いマイホーム」を実現されました。
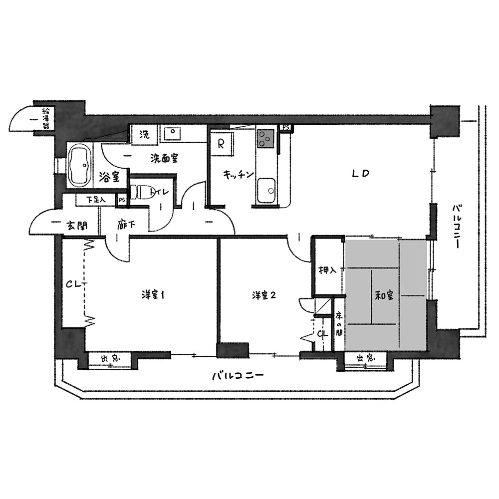
BEFORE
AFTER

リノベ後のお宅紹介 アクセスランキング TOP4