福岡県内の事業者で大型リフォーム工事実績 No.1

お電話でのお問い合わせ

tel.092-980-1100

福岡県内の事業者で大型リフォーム工事実績 No.1

4D設計で間取りが変化する「子どもと成長する家」

DATA

所在地
福岡市中央区
物件価格
2,180万円
リノベ費用
1,560万円
管理費+修繕積立金
24,440円
築年月
1987年3月
広さ
76.22㎡
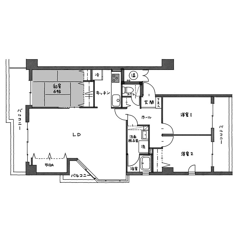
間取り
1LDK(最大で3LDK)
ファミリーに人気の高い文教エリアにある築38年のマンションを、インテリアショップ「アクタス」の協力を得てフルリノベーションしました。コンセプトは「子どもと成長する家」です。

子どもの成長に合わせて、家に必要な部屋数や間取りは変わります。せっかく用意した子ども部屋も、小さい頃は使われなかったり、後々は物置になってしまう…なんてことも。

だからこそ、ライフスタイルに応じて、1LDKから3LDKまで間取りを変えることができる部屋を設計しました。76㎡とコンパクトながら、家族4人でも長く、快適に生活ができる家です。

「縦、横、高さ」の3Dに加えて、「時間軸」をプラスした考え方が4D設計。人口が減少し、インフレが進む時代だからこそ、都心にあるコンパクトな家の魅力は高まっています。設計時点から未来の生活を意識しておくことで、子育て世帯であっても理想の空間づくりが可能です。

また、アクタスのセレクトで実現したリノベとインテリアの融合も見どころです。プランニング時点で、設置する家具のことまで想定しておくことで、より満足度の高いマイホームが実現するのではないでしょうか。

★ RENOVATION OF THE YEAR 2025 受賞 ★
一般社団法人リノベーション協議会が主催する「RENOVATION OF THE YEAR 2025」で、当物件が「未来プレゼンテーション賞」を受賞しました。
詳しくはコチラをご覧ください。

子どもと成長する家

BEFORE
AFTER

リノベ後のお宅紹介 アクセスランキング TOP4