福岡県内の事業者で大型リフォーム工事実績 No.1

お電話でのお問い合わせ

tel.092-980-1100

福岡県内の事業者で大型リフォーム工事実績 No.1

定年後の趣味を楽しめる夫婦二人の家

DATA

所在地
福岡市西区
物件価格
所有済み
リノベ費用
1,250万円
管理費+修繕積立金
非公開
築年月
1998年3月
広さ
96.17㎡
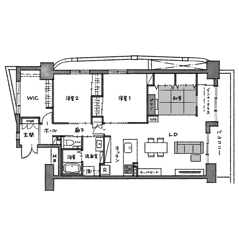
間取り
2LDK+WIC
ご主人が定年退職し、家で過ごす時間が長くなったことから、リノベーションを検討されたご夫婦。実はリノベをするか迷っていた時に、たまたま近隣に当社がリノベしたお宅があり、そこを見学したことで決意されたとのこと。

96㎡という広いお宅のため、コストを抑えるためにも間取りは大きく変更せず、使える設備も一部残したリノベーションとなりました。それでも、改修内容にメリハリをつけることで、とてもステキな空間が実現しています。

また、角部屋ゆえに暑さ、寒さに悩まれていたとのことで、全室に内窓を設置。特に寒かった北側のお部屋をWICとすることで、居室部分の快適性を高めました。一方、南側に設置したインナーテラスには暖かい日が差し込み、室内干しにも最適な空間となっています。

さりげないポイントながら、キッチン横のニッチ収納は「一升瓶が入るサイズに」とご主人がこだわったポイント。和室兼ゲストルームには、奥さまが楽しまれるピアノスペースもさりげなく配置。ご夫婦それぞれが趣味の時間を満喫できる、オンリーワンの空間が実現しました。
BEFORE
AFTER

リノベ後のお宅紹介 アクセスランキング TOP4