福岡県内の事業者で大型リフォーム工事実績 No.1

お電話でのお問い合わせ

tel.092-980-1100

福岡県内の事業者で大型リフォーム工事実績 No.1

コスパを意識した家族3人の家

DATA

所在地
福岡市博多区
物件価格
2,190万円
リノベ費用
1,150万円
管理費+修繕積立金
12,120円
築年月
1990年10月
広さ
65.11㎡
間取り
2LDK
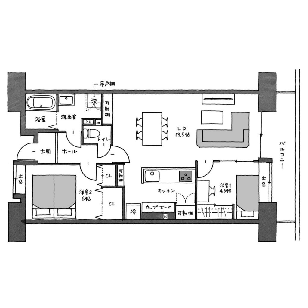
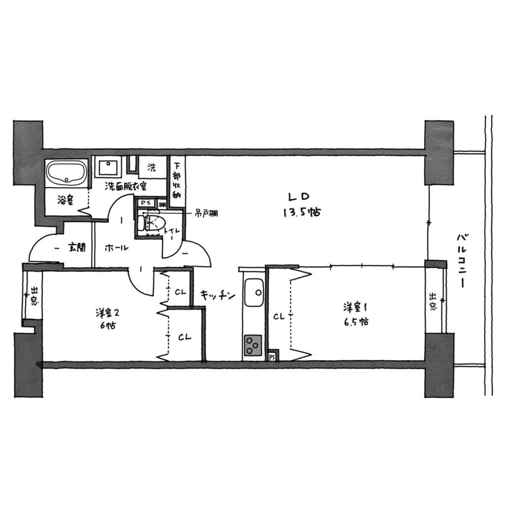
家族3人暮らしを想定した「コスパを意識した無理のないマイホーム」がコンセプトです。専有部は65㎡とコンパクトなサイズながらも、家族3人が暮らす2LDKとしてはゆとりある空間を実現しています。

元々2LDKの間取りだったのですが、改装前はキッチン部分が暗く、家族との会話が難しいレイアウトでした。そこでキッチンの向きを90度変更し、リビング&ダイニングが一体となるように改装。子ども部屋は意図的にサイズダウンして、家族3人が日々の生活でゆとりを感じるリビング空間へとリノベーションしました。

今回のプランニングでは、キッチンなどの住宅設備や建材も予算内で出来るだけアップグレードしていることも特徴です。洗面空間やお風呂もサイズアップし、暮らしのストレスを軽減しました。もちろん、リノベーションならではの造作部として、子ども部屋との間にはオリジナルの室内窓を設置。リビング空間のアクセントにもなっています。

いわゆる「設備の置き換え」が中心のリフォームでなく、間取りを更新するリノベーションの特徴を活かしつつ、同時にコストとクオリティの両立を目指した空間です。

リノベーションの詳細については、こちらのブログもご覧ください。
https://www.happy-renovation.com/blog/?p=7318
BEFORE
AFTER

リノベ後のお宅紹介 アクセスランキング TOP4