福岡県内の事業者で大型リフォーム工事実績 No.1

お電話でのお問い合わせ

tel.092-980-1100

福岡県内の事業者で大型リフォーム工事実績 No.1

仕事と子育てを両立するアーバンスタイルな暮らし

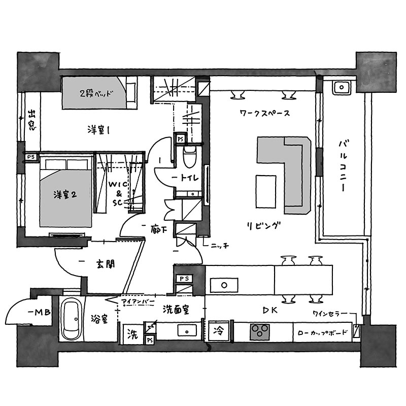
DATA

所在地
福岡市東区
物件価格
3,300万円
リノベ費用
1,300万円
管理費+修繕積立金
17,300円
築年月
2006年2月
広さ
79.50㎡
間取り
2LDK+WIC
黒を基調としたカラーリングに、間接照明の光。リビングにはシンプルな家具のみ置かれており、まるで都心にあるホテルのようなお部屋が完成しました。

床材はフローリングを使用せず、ワンランク上の佇まいを演出。壁面や天井などにも、あえて木目調の装飾材をいっさい使わないことにより、アーバンスタイルな空間となっています。

キッチンはスタイリッシュなグラフテクトを選定し、さらに同素材のダイニングテーブルを連続して配置。背面にあるカップボード上部にも、同系色のタイルを採用しています。さらに、家電もモノトーンで統一。ご夫婦の徹底したこだわりが見られます。

リモートワークのため、家で過ごす時間が長くなったご夫婦。だからこそ、広々としたリビングは仕事場兼家族団欒の場となるよう、高級感と機能性が両立されています。
BEFORE
AFTER

リノベ後のお宅紹介 アクセスランキング TOP4