福岡県内の事業者で大型リフォーム工事実績 No.1

お電話でのお問い合わせ

tel.092-980-1100

福岡県内の事業者で大型リフォーム工事実績 No.1

戸建も「部分リノベ」で暮らしアップデート

DATA

所在地
福岡市西区
物件価格
自己所有
リノベ費用
非公開
管理費+修繕積立金
なし
築年月
1997年2月
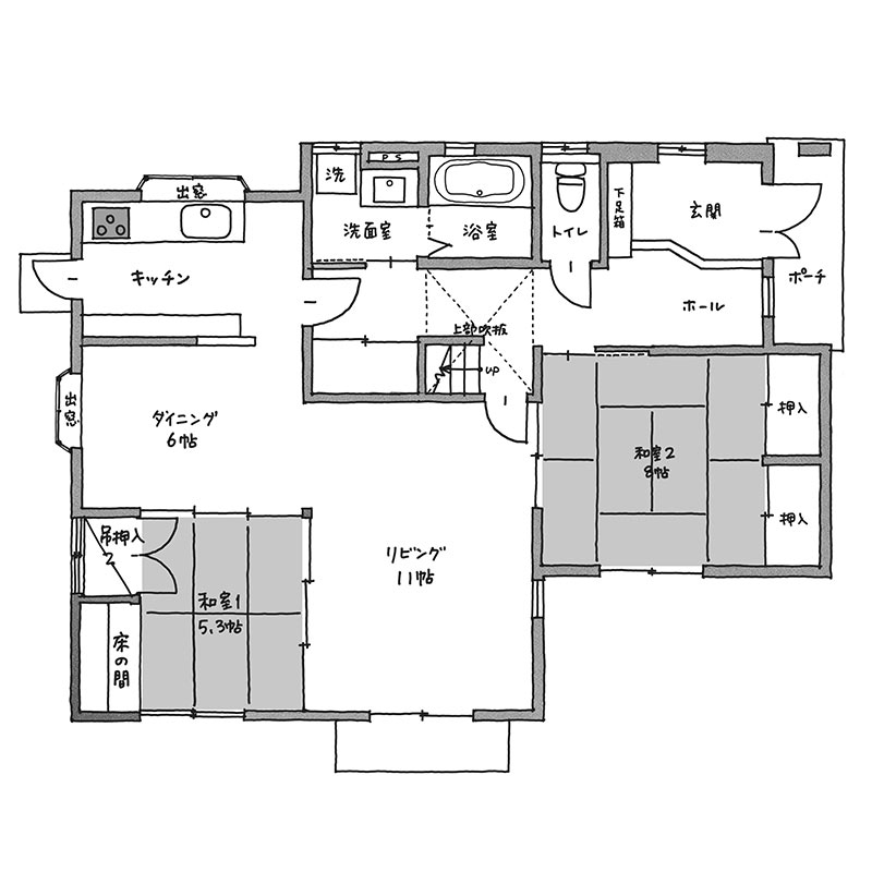
広さ
90.38㎡(1階部分のみ)
間取り
2LDK(1階部分のみ)
戸建リノベーションは難易度が高いと言われますが、実際は築年数と元々の構造に影響されます。今回のように比較的築浅な木造住宅で、しかも丁寧に扱われていた家であれば、マンション同様に宅内工事だけで暮らしは一変します。

昭和時代の基本レイアウトといえば、一番気持ちの良い南面に広めの和室を配置する一方、キッチンは一番寒い北側に、その横に狭いダイニングを置くのが一般的でした。現代の暮らしと比較すると、どうしても間取り自体にジェンダー差別を感じるだけでなく、建築や設計という仕事がいかに男性中心だったか(生活者中心でなかったか)を意識せざるを得ません。

今回の工事では、ご家族とペットが一番気持ちの良い空間をフルタイムで満喫できるよう、リビングと和室を一体でデザイン。単なる「傷んだ設備の置き換え」ではなく、暮らし自体のアップデートを目指しました。戸建の工事だからこそ、リフォームとリノベーションの「違い」をより明確に感じていただけるのではないでしょうか。
BEFORE
AFTER

リノベ後のお宅紹介 アクセスランキング TOP4