福岡県内の事業者で大型リフォーム工事実績 No.1

お電話でのお問い合わせ

tel.092-980-1100

福岡県内の事業者で大型リフォーム工事実績 No.1

生活空間と収納空間をリバランスした家

DATA

所在地
福岡市中央区
物件価格
非公開
リノベ費用
1,600万円
管理費+修繕積立金
なし
築年月
2012年3月
広さ
122.55㎡(車庫と小屋裏収納を除く)
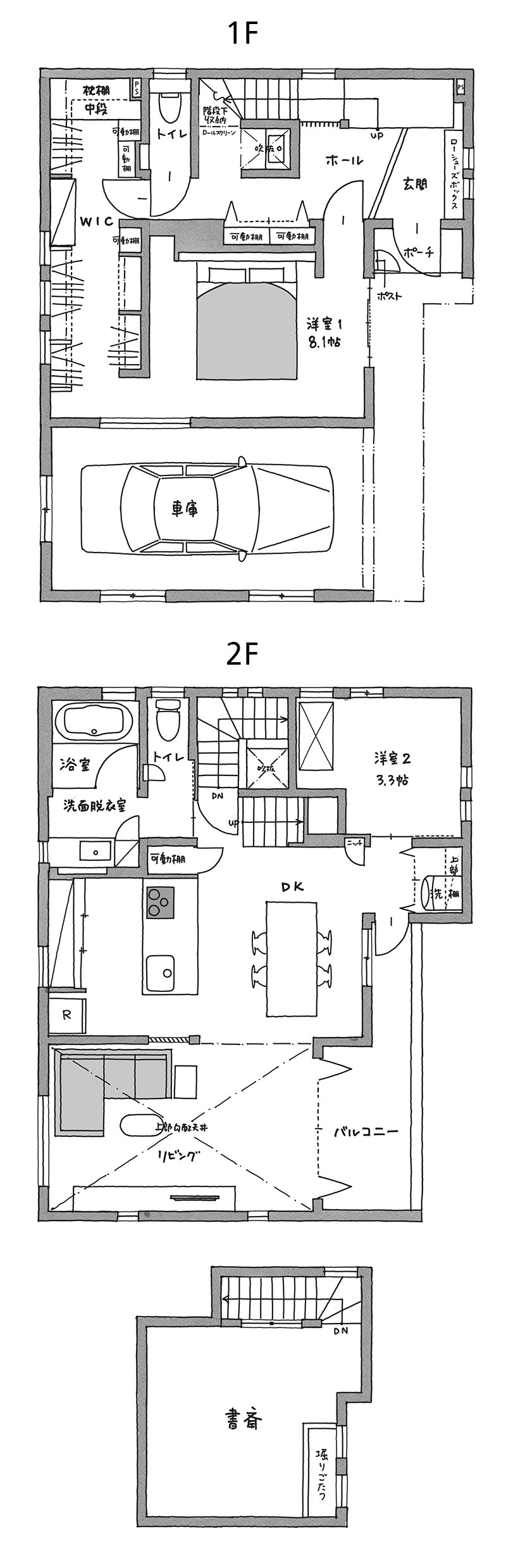
間取り
2LDK+WIC+書斎
西鉄平尾駅から徒歩10分もかからない立地の築浅戸建を、さらにオーナー夫婦が住みやすい空間へとカスタマイズしました。

戸建ならではの立体感を活かし、階段下空間に洗面スペースを新設したり、3階部分にあった小屋裏収納を書斎化しています。元々の間取りは個室数を優先したレイアウトだったため、これから住むご家族に合わせた部屋数と収納空間へとリノベーション。すべての空間が、戸建ならではの広々としたお部屋へと生まれ変わりました。

マンションよりも自由度が高い戸建リノベですが、その分準備も複雑ですし、どうしてもコストアップします。だからこそ、しっかりと「費用をかけるべきところ」と「抑えるところ」を意識してプランニングに取り組むことが重要です。

お客さまのこだわりと、それを実現するために努めたプロのこだわりが共存した空間が実現しました。
BEFORE
AFTER

リノベ後のお宅紹介 アクセスランキング TOP4