福岡県内の事業者で大型リフォーム工事実績 No.1

お電話でのお問い合わせ

tel.092-980-1100

福岡県内の事業者で大型リフォーム工事実績 No.1

ピアノとネコを愛する夫婦の家

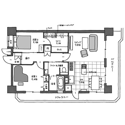
DATA

所在地
福岡市博多区
物件価格
所有済み
リノベ費用
1,190万円
管理費+修繕積立金
非公開
築年月
1994年8月
広さ
67.83㎡
間取り
2SLDK
長く海外で生活されたご夫婦が、これからの暮らしを考えた間取りへとリノベーションされました。

玄関から近い一室は、ピアノのレッスンルームです。ご自身が弾いて楽しむ時も、生徒さんのレッスンに使用する時も、みんなが使いやすい位置に配置しています。

一方、リビングはご夫婦がゆったり過ごせるようにダイニングとソファを少し離れてレイアウトし、お互いが程よい距離感で暮らせるようにしています。

また、海外生活を共に過ごしてきたネコも大事な家族の一員として、ペットがストレスなく暮らせるよう専用入口も配置。家族全員が、それぞれの生活を楽しめる空間が実現しました。
BEFORE
AFTER

リノベ後のお宅紹介 アクセスランキング TOP4