福岡県内の事業者で大型リフォーム工事実績 No.1

お電話でのお問い合わせ

tel.092-980-1100

福岡県内の事業者で大型リフォーム工事実績 No.1

けやき通りに生まれたシックな邸宅

DATA

所在地
福岡市中央区
物件価格
2,690万円
リノベ費用
1,370万円
管理費+修繕積立金
21,845円
築年月
1981年5月
広さ
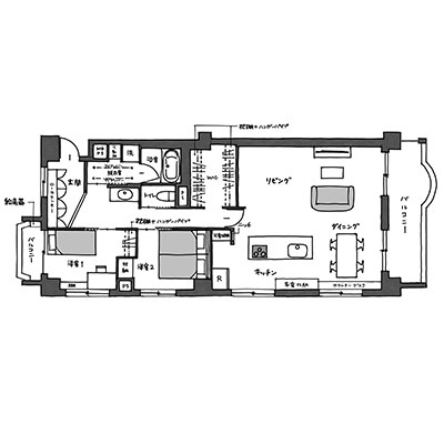
86.1㎡
間取り
2LDK+S
大人の街として人気が高いけやき通り沿いには、築年数を経たリノベ向きマンションが多数あります。それぞれがヴィンテージマンションへと進化しているエリアなので、結果的に街全体の価値が上がっています。

そんな立地にある広さ86㎡の物件を、贅沢にも2LDKへとリノベーション。シックな街にふさわしい、落ち着いた雰囲気となっています。

宅内は経年変化を楽しめる無垢材のフローリングをベースに、本宅のアイコンにもなっているタイル、グレーのクロス、玄関の艶ありモルタルなど存在感のある素材を活かしたコーディネートが特徴です。

マンションならではの大きめの梁など、どうしても存在をなくすことができないパーツについては、陰影を意識したデザインでカッコよく仕上げています。

天神まで徒歩圏内の立地ながらも、都心であることを忘れてしまいそうな落ち着いた空間が完成しました。

Enjoy at Home
BEFORE
AFTER

リノベ後のお宅紹介 アクセスランキング TOP4