福岡県内の事業者で大型リフォーム工事実績 No.1

お電話でのお問い合わせ

tel.092-980-1100

福岡県内の事業者で大型リフォーム工事実績 No.1

49㎡でもローン減税OKになりました

DATA

所在地
福岡市南区
物件価格
2,530万円
リノベ費用
物件価格に含む
管理費+修繕積立金
19,520円
築年月
1982年10月
広さ
49.18㎡
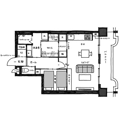
間取り
1LDK
西鉄平尾駅まで徒歩5分の立地に、管理の行き届いたマンションがありました。こちらを気に入られたオーナーですが、一つの課題がありました。今年から新たに40㎡以上50㎡未満の物件でもローン減税の対象となったものの、「個人が売主の物件は対象外」と言うルールでした。

そこで、はぴりの!のオリジナルサービスである「ワンストッププラス」をご利用頂き、一旦は当社で代理購入。それをフルオーダーのリノベ後に再販することで、自分好みのマイホームを「減税対象」としてご購入頂くことが可能となりました。

リビングは落ち着いた雰囲気ながらも、収納部分などプライベートな空間はビビットな色使いで遊びを楽しまれています。隠れた部分でオシャレを楽しむセンスこそが、都心で暮らすオトナ二人の生活にピッタリなイメージです。
BEFORE
AFTER

リノベ後のお宅紹介 アクセスランキング TOP4