福岡県内の事業者で大型リフォーム工事実績 No.1

お電話でのお問い合わせ

tel.092-980-1100

福岡県内の事業者で大型リフォーム工事実績 No.1

在宅ワークもラクラクこなせる駅近マイホーム

DATA

所在地
福岡市南区
物件価格
2,730万円
リノベ費用
850万円
管理費+修繕積立金
21,080円
築年月
1997年2月
広さ
76.74㎡
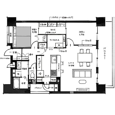
間取り
2LDK+WS
在宅ワークが当たり前になった時代、とってもアクティブに仕事と生活に向き合っているご夫婦が、毎日をストレスなく過ごせるマイホームが完成しました。

リビングでの暮らしを中心に、それぞれの状況に合わせて使える半個室(ワークスペース)を完備。リビングに隣接しているため、プライベートと仕事をゆるやかに切り分けられるレイアウトになっています。

しかも、将来の子ども部屋も準備しているので、長く住むことも可能な間取りです。いまだけでなく、家族の将来も見据えた素敵なマイホームが完成しました。
BEFORE
AFTER

リノベ後のお宅紹介 アクセスランキング TOP4