福岡県内の事業者で大型リフォーム工事実績 No.1

お電話でのお問い合わせ

tel.092-980-1100

福岡県内の事業者で大型リフォーム工事実績 No.1

ネコと人間が「程よい距離感」で暮らす家

DATA

所在地
福岡市城南区
物件価格
1,980万円
リノベ費用
890万円
管理費+修繕積立金
22,520円
築年月
1990年6月
広さ
60.48㎡
間取り
2LDK
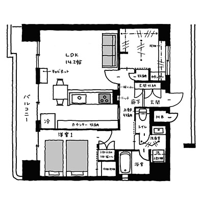
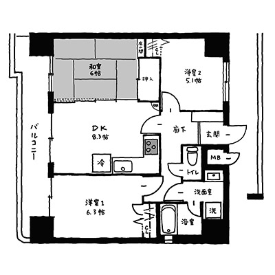
都心部で、ネコとの暮らしを前提にマイホーム探しをしていたお客さまが出会ったのは、地下鉄の駅まで徒歩1分という立地に優れたマンションと、2匹の愛くるしい子猫でした。

明るく広々としたリビングは、ご夫婦だけでなくネコたちにとっても居心地の良い生活空間です。

こちらのお宅では人間もネコも気持ちよく暮らせるように、水回りや生活空間はそれぞれの動線を考えてレイアウト。お互いが「程よい距離感」で暮らせるようになっています。

ご夫婦にとっても、ネコたちにとっても、理想のマイホームが完成しました。
BEFORE
AFTER

リノベ後のお宅紹介 アクセスランキング TOP4